

As you will see, these homes can be a lot more than just "tiny homes", which is what most people envision when they think of modular homes. Although we do offer them, some of these state of the art masterpieces are far from tiny.

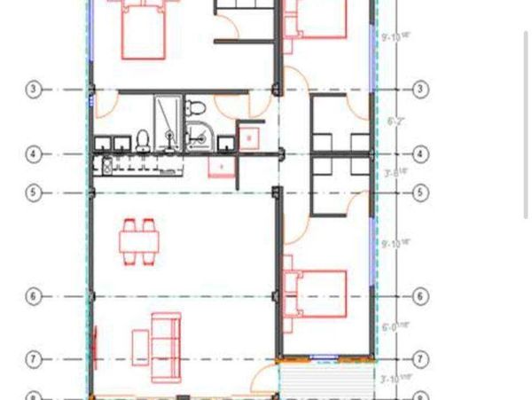
Discover the extraordinary spaciousness and unbeatable affordability of our large two-bedroom modular modern home. This remarkable dwelling defies expectations with its generous interior, providing ample room for comfortable living without breaking the bank. Crafted with meticulous attention to detail, it showcases top-quality materials and a sleek design, setting a new standard for affordable luxury in the world of modular homes. Experience the perfect fusion of space, style, and savings in this surprising gem, where your dream of spacious, modern living becomes a reality.

Explore the floorplan of our remarkably spacious and unbelievably affordable two-bedroom modular home, redefining modern living. This innovative layout maximizes space without compromising on style, offering a generously sized interior that's perfect for comfortable living on a budget. Crafted with top-quality materials, this floorplan showcases a sleek and contemporary design, setting new standards for affordability in the world of modular homes. Discover the perfect harmony of space and savings in this surprising gem, where your dream of affordable, spacious living comes to life.

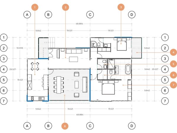
Explore our large two-bedroom modular modern home, nearly identical to the previous model but with an even more spacious bedroom. This remarkable dwelling continues to redefine expectations, offering an exceptionally roomy interior for comfortable living that won't strain your budget. Crafted with meticulous attention to detail, it features top-quality materials and a sleek design, continuing to set the benchmark for affordable luxury in the world of modular homes. Experience the perfect blend of space, style, and savings in this delightful gem, where your dream of spacious, modern living takes center stage

Explore the floorplan of our remarkably spacious and unbelievably affordable two-bedroom modular home, featuring a variation that gives you an even more spacious bedroom. This innovative layout maximizes space without compromising on style, offering a generously sized interior that's perfect for comfortable living on a budget. Crafted with top-quality materials, this floorplan showcases a sleek and contemporary design, setting new standards for affordability in the world of modular homes. Discover the perfect harmony of space and savings in this surprising gem, where your dream of affordable, spacious living comes to life.

The Vivabox Haven offers a stunning example of modern modular design that redefines contemporary living. With its bold, innovative architecture, this home captivates through clean lines and a clever elevation that mimics a two-story structure—yet it’s all on a single level. The standout feature is the great room, boasting a dramatic 20-foot ceiling that amplifies the sense of space, making the 1200 or 1400 square foot layout feel remarkably expansive and airy. This thoughtful design, paired with expansive glass walls and sliding doors, creates an open, inviting atmosphere perfect for any lifestyle, while the flat roof offers the exciting potential for a custom rooftop deck upgrade, adding versatility to your personal sanctuary.

Inside, the home flows seamlessly with a spacious open-concept layout, where high ceilings and large windows enhance the modern aesthetic, complemented by durable, water-resistant flooring and custom cabinetry that blend functionality with elegance. The gourmet kitchen shines as a culinary hub, featuring expansive countertops, top-tier appliances, and a versatile island ideal for gatherings. Two generously sized bedrooms serve as private retreats, each with ample storage and access to spa-inspired bathrooms equipped with luxurious fixtures and thoughtful details. Engineered with smart-ready systems and superior insulation, this turnkey Vivabox is delivered fully assembled, ready to elevate your land into a sophisticated, modern haven. Reach out to Uncontained Living today to make it yours.

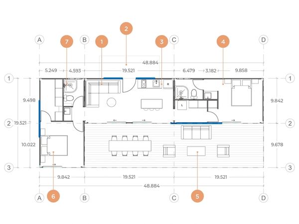
Discover affordable modern living with our two-bedroom modular home. This cost-effective, stylish dwelling offers all the comforts you need, from spacious bedrooms to a contemporary open-plan living area. Our modular design ensures efficient construction and customizable options, making homeownership more accessible than ever. Experience the perfect blend of affordability and modernity in this sleek, sustainable home.

Explore the floorplan of our affordable two-bedroom modular home, a true embodiment of modern living without breaking the bank. This budget-friendly layout showcases spacious bedrooms and a sleek open-plan living area, providing ample space for comfortable living. Our modular design streamlines construction, making homeownership more accessible. Step inside this picture of affordability and modernity, where sustainable living meets your budgetary needs.

Step into a world where sophistication meets simplicity in this state-of-the-art 600-square-foot modular masterpiece, meticulously crafted to redefine affordable elegance. With two spacious bedrooms and two opulent bathrooms, this home is a testament to ultra-luxurious living that defies expectations—delivering resort-like refinement at a price that will leave you astonished. Engineered for seamless delivery anywhere in the United States, it's not just a residence; it's a sanctuary of serenity, with financing options available to qualified buyers to make your dream of elevated living an effortless reality. expectations, offering an exceptionally roomy interior for comfortable living that won't strain your budget. Crafted with meticulous attention to detail, it features top-quality materials and a sleek design, continuing to set the benchmark for affordable luxury in the world of modular homes. Experience the perfect blend of space, style, and savings in this delightful gem, where your dream of spacious, modern living takes center stage

From the moment you arrive, this modular home captivates with its sleek, minimalist exterior, featuring clean lines, premium materials, and a generous wooden deck perfect for al fresco dining. Floor-to-ceiling glass doors and expansive windows flood the interior with natural light, while high-performance thermal walls ensure energy efficiency without sacrificing style. Inside, nearly 10-foot ceilings create an airy, expansive feel, complemented by durable, water-resistant SPC wood flooring and custom-built cabinetry with integrated shelving. The open-concept living area, illuminated by recessed LED lighting, offers refined comfort for entertaining or quiet reflection, with high-efficiency air conditioning ensuring year-round climate perfection.
The gourmet quartz kitchen is a chef’s dream, boasting stain-resistant countertops, a sleek induction cooktop, built-in oven, and a spacious island that doubles as a breakfast bar. Soft-close drawers and under-cabinet lighting elevate functionality with sophistication. The two bedrooms, each with floor-to-ceiling windows and built-in wardrobes, offer serene retreats, with the master suite featuring en-suite access for hotel-like luxury. Dual spa-inspired bathrooms feature rainfall showerheads, frameless glass enclosures, quartz-topped vanities, and heated towel racks, transforming routines into rejuvenating escapes. Engineered for longevity with smart-ready systems and superior insulation, this turnkey home delivers unmatched value, blending cutting-edge innovation with timeless opulence. Contact us today to make this extraordinary residence yours.

Unlock affordable, modern living with our single-story, two-bedroom modular home. This economically savvy yet stylish abode delivers all the essential comforts, boasting spacious bedrooms and a contemporary open-plan living area. Our innovative modular construction guarantees efficient building processes and a plethora of customizable choices, revolutionizing the accessibility of homeownership. Immerse yourself in the flawless union of affordability and contemporary living within this elegant and eco-conscious home

Discover the pinnacle of affordable luxury in our modern, single-story two-bedroom modular home. Crafted with the highest quality materials on the market, this compact yet spacious dwelling redefines tiny home living. Its modular design ensures efficient construction and endless customization options, providing you with an affordable dream home that's second to none. Experience the perfect fusion of style, sustainability, and affordability in this cutting-edge gem, setting the standard for tiny homes and modular homes alike.

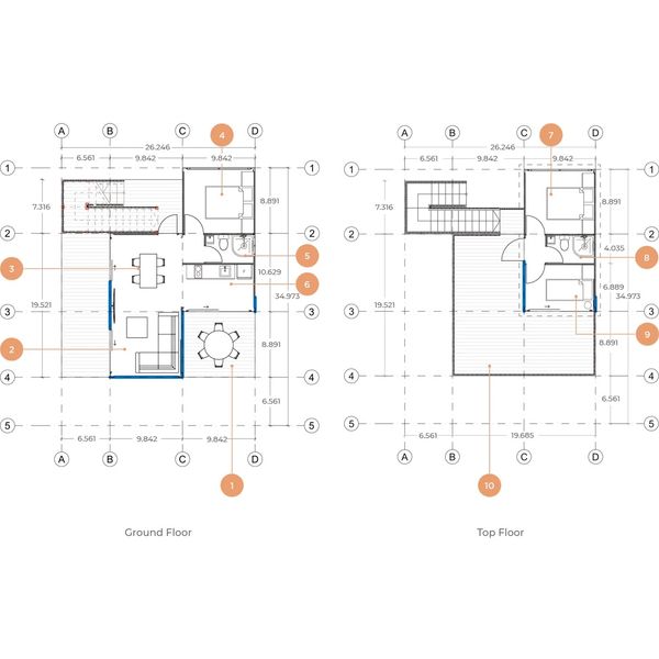
Experience unparalleled quality and innovation in our top-of-the-line L-shaped two-bedroom modular home. This impeccably designed dwelling epitomizes modern living, boasting a spacious and functional layout. Crafted with meticulous attention to detail, it redefines the standards of tiny and modular homes, offering unmatched luxury and sustainability. From its sleek kitchen and open living spaces to its thoughtfully appointed bedrooms, this home reflects the epitome of comfort and elegance. Discover the future of affordable, high-quality living within this cutting-edge, L-shaped masterpiece.

Explore the floorplan of our top-quality L-shaped two-bedroom modular home, setting new standards for tiny homes and modular living. This innovative design combines functionality and aesthetics seamlessly, providing a spacious and versatile layout. Crafted with precision and utilizing the finest materials, it redefines the concept of modular homes, offering a luxurious and sustainable lifestyle. From the stylish kitchen to the well-appointed bedrooms, this floorplan embodies the utmost in comfort and sophistication. Step into the future of affordable, high-quality living within this L-shaped architectural gem.

Discover the epitome of modern living with our state-of-the-art two-bedroom modular tiny home. This sleek and compact dwelling boasts cutting-edge design, featuring spacious bedrooms, a contemporary open-plan living area, and a fully equipped kitchen with top-of-the-line appliances. Its modular construction allows for effortless customization and expansion. Experience eco-friendly living with energy-efficient systems and sustainable materials. Explore the future of tiny homes with our luxurious, minimalist haven that combines style, functionality, and sustainability seamlessly.

Experience contemporary living at its finest with our cutting-edge two-bedroom modular tiny home floorplan. This architectural masterpiece offers a spacious and open design, featuring generously sized bedrooms, a modern open-concept living area, and a gourmet kitchen equipped with top-of-the-line appliances. Our innovative modular construction allows for effortless customization and expansion to suit your unique preferences. Elevate your eco-conscious lifestyle with energy-efficient systems and sustainable building materials. Step into the future of tiny home living with our luxurious, minimalist floorplan that seamlessly merges style and practicality.

Although the same square footage as Vivabox Horizontal, this layout has a small footprint enabling high density or maximizing the feel of being in nature as the home itself would take very little of the land it is placed on.

From rendering to reality, these homes are stunning. The top notch materials and construction make this home built to last at a price that is affordable for home owners and real estate investors alike.

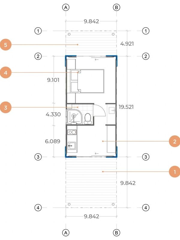
This layout is great as a studio and if multiple units are being purchased as a development, this variation will help make the neighborhood have character if coupled with the Vivabox Vertical below.

From rendering to reality, these homes are stunning. The top notch materials and construction make this home built to last at a price that is affordable for home owners and real estate investors alike.
We use cookies to analyze website traffic and optimize your website experience. By accepting our use of cookies, your data will be aggregated with all other user data.